Phối cảnh công trình anh Chung-chị Thủy
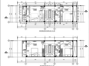
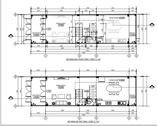
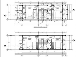
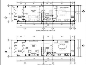
THÔNG TIN DỰ ÁN
| Chủ đầu tư | Anh Chung- chị Thủy |
| Địa chỉ | Hà Đông- Hà Nội |
| Diện tích xây dựng | 58m2 x 3 tầng |
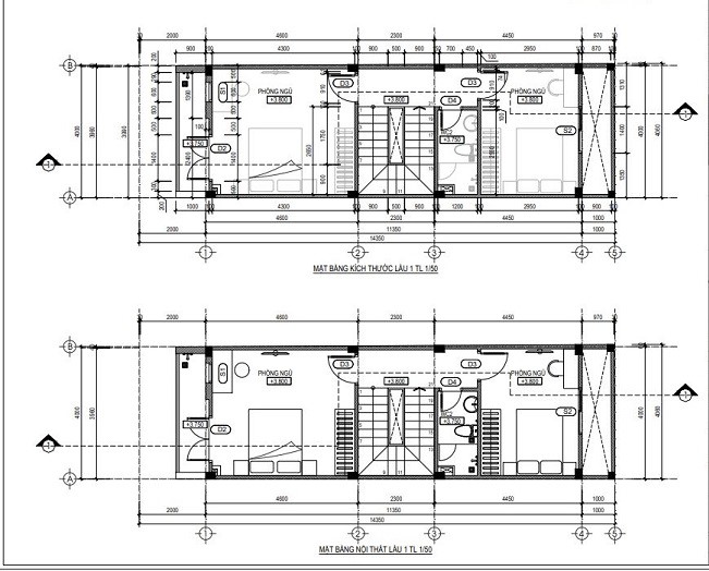
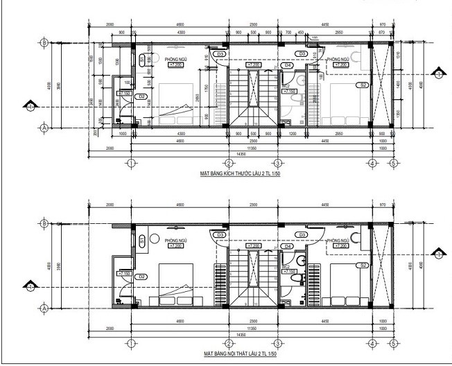
| Công năng | 1 khách, 1 bếp, 1 thờ, 3 ngủ, 2wc |
| Thời gian thi công | |
| Tổng mức đầu tư |
THÔNG TIN DỰ ÁN
| Chủ đầu tư | Anh Chung- chị Thủy |
| Địa chỉ | Hà Đông- Hà Nội |
| Diện tích xây dựng | 58m2 x 3 tầng |
| Công năng | 1 khách, 1 bếp, 1 thờ, 3 ngủ, 2wc |
| Thời gian thi công | |
| Tổng mức đầu tư |