Phối cảnh công trình chú Nam- cô Hiên
THÔNG TIN DỰ ÁN
| Chủ đầu tư | Chú Nam- cô Hiên |
| Địa chỉ | Tứ Kỳ, Hải Dương |
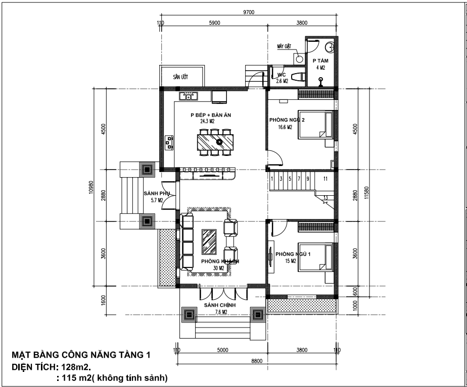
| Diện tích xây dựng | 120m2 x 2 tầng |
| Công năng | 1 khách, 1 bếp, 1 thờ, 4 ngủ, 4wc |
| Thời gian thi công | Tháng 2/2021-8/2021 |
| Tổng mức đầu tư | Khoảng 1.6 tỷ đồng |























